Nezařazeno • Aber auch • Mais aussi
Neo House Tokyo Nerima, une maison partagée singulière

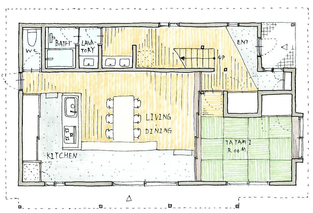
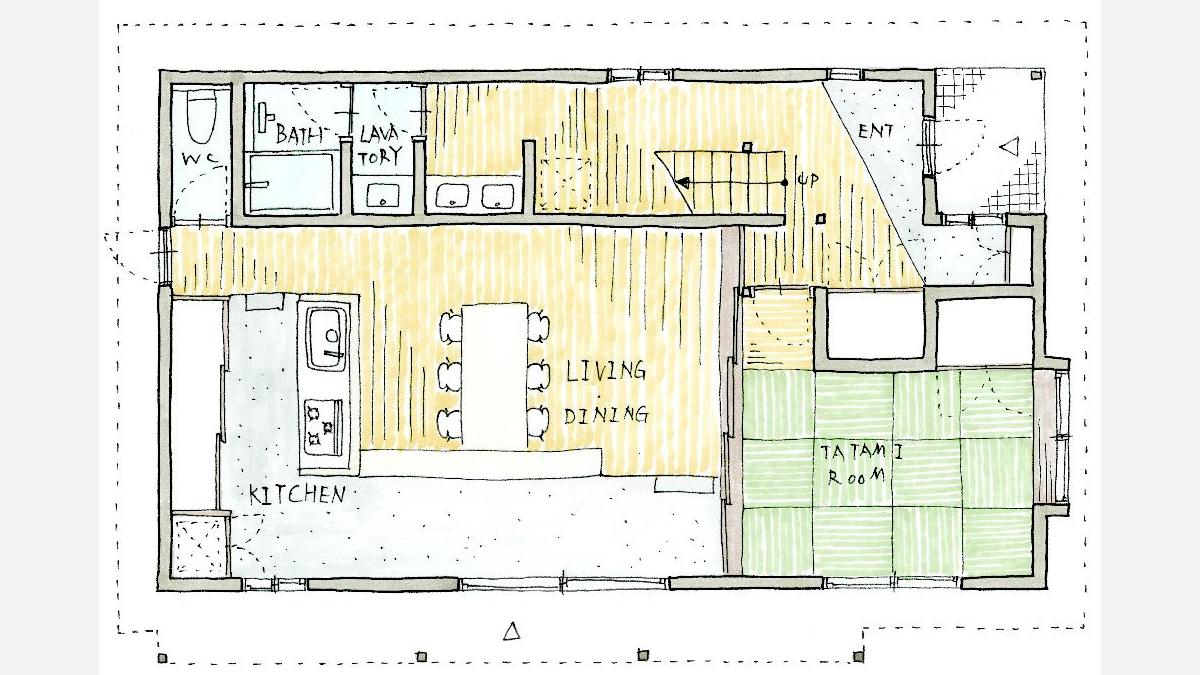
Le 1er janvier ouvrira à Nerima, dans un quartier calme de Tokyo, Neo House Tokyo Nerima une maison avec des logements et une galerie.
Situé à 7 min à pied de Nakamurabashi, sur la ligne Seibu Ikebukuro rejoignant aisément Shinjuku et Ikebukuro, cette habitation est un lieu de vie idéal pour les voyageurs de moyenne durée. Les alentours comptent commodités et lieux de culture (bibliothèque, musée).
Meilleur marché qu’un séjour en hôtel, pour les business trip ou les missions plus longues, Neo House Tokyo est une option avantageuse à 75.000 yens / mois (+15.000 yens de charges). Comparée à une chambre impersonnelle, l’aménagement intérieur a été imaginé pour allier tradition avec les structures de la maison originale et modernité avec un style à l’occidental pour rendre la vie quotidienne confortable.
Un espace d’exposition spécifique
Neo House Tokyo propose au rez-de-chaussée un espace d’exposition unique pour accueillir des workshops, des séminaires dont les résidents pourront profiter gracieusement. Cet espace collaboratif accueillera les évènements des résidents, des collectivités locales et du voisinage.
Pour plus d'information
https://neohousetokyo.com/
Mail:info(@)neohousetokyo.com












